设计养殖场内的布局和设施时,需要综合考虑多个因素,包括养殖类型、规模、地理位置、环境条件以及动物福利等。以下是一个详细的养殖场设计图绘制步骤和建议:
1. 设计依据
相关标准:参照国家或地方的建筑标准和养殖技术规范。

实际情况:考虑养殖场的地理位置、气候条件、地形等因素。
2. 适用范围
畜禽圈舍建设:适用于不同类型的畜禽圈舍,如牛舍、猪舍、羊舍等。
3. 墙体材料
水泥砖体:适用于大多数养殖场,具有良好的保温和耐久性。
4. 地面材料
水泥砂浆:平整、耐磨,适合各种养殖环境。
5. 床面材料
木条:适合牛羊等需要较大活动空间的动物。
6. 屋面材料
彩钢瓦:适用于各种气候条件,特别是高海拔地区。
7. 沼气池
容积设计:根据养殖规模设计沼气池容积,实现资源循环利用。
8. 圈舍朝向
南北朝向:有利于采光和通风,适合大多数地区。

9. 圈舍布局
生产区:包括饲养区、饲料储存区等。
办公区:包括办公室、监控室等。
饲料储藏加工区:包括饲料储存、加工设施等。
粪污处理及病畜隔离区:包括粪污处理设施、病畜隔离区、兽医室等。
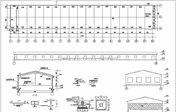
10. 设计图纸
# 10.1 效果图
牛(羊)圈舍布局:设计说明:饲养牛100头,羊300只。
封闭式牛舍单体建筑效果图:设计说明:长27米,宽10.2米(或9.4米),单独饲养牛50头。主要优点:保暖性能好,适合海拔较高,气温较低的地方。
暖棚式牛舍单体建筑效果图:设计说明:饲养牛100头,双栋设计,单栋长27米,宽11米。
# 10.2 平面设计图
肉牛养殖场平面设计图:手绘稿,详细标注各区域的位置和尺寸。
11. 建议
考虑动物福利:确保圈舍设计满足动物的生活习性和福利需求。

资源循环利用:设计高效的粪污处理系统,实现资源的循环利用。
环保要求:符合当地环保法规,减少污染物排放。
经济性:在满足功能需求的前提下,尽量降低建设成本。
通过以上步骤和建议,可以绘制出一个功能完善、经济合理的养殖场设计图。如果需要更详细的设计图纸,建议咨询专业的建筑师或养殖设施设计师。










